乾良巽气弱别慌!三灵畜补气场+陶石镇中垣!

《宅经·补阙篇》载:"坤虚损母安,陶石镇中垣;乾艮巽气弱,三灵畜补全。"
注解:西南坤位缺角以陶土摆件化解;西北(乾)、东北(艮)、东南(巽)用生肖摆件(狗牛虎)补气,契合"三灵畜"古法。
住宅朝向适宜性
坐西朝东的朝向,从采光角度,早晨阳光能照进室内,让房间充满活力与温暖;气流上,西方金元素收敛气场,东方木元素扩散升发,气流相对顺畅,利于事业财运稳定发展。
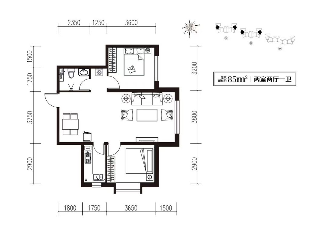
房屋缺角
住宅缺西南角(坤),同时西北角(乾)、东北角(艮)、东南角(巽)相对弱势。
空间优化重点
穿堂煞问题
开门见阳台形成穿堂煞,气流直进直出,不利藏风聚气,还可能影响健康和财运。
厨房隐患
灶台与洗衣机相冲(火水冲),厨房动线不合理,冰箱在门口,进门是灶台,水盆在尽头,不符合 “拿 - 洗 - 切 - 烹” 动线逻辑。
卧室与卫生间
两个卧室分处南北两端,有水火不容态势,北面卧室开门正对卫生间污秽之气,卧室门与卫生间门对门也不好。
布局调整方案
化解穿堂煞
入户门与阳台间增设实体隔断,引导气流迂回,增加空间层次感,还能保护隐私。
厨房优化
重新规划厨房动线,将冰箱移到合适位置,按 “拿 - 洗 - 切 - 烹” 调整灶台和水盆位置,提高烹饪效率。
卧室与卫生间调整
改变卧室或卫生间开门方向,避免门对门;可利用软隔断如布帘,缓解北面卧室正对卫生间的问题。
补角措施
针对坤位缺角,在西南方摆放陶瓷羊、泰山石等土属性摆件;乾、艮、巽位可通过摆放对应五行物品增强气场,如乾位(西北)放金属摆件,艮位(东北)放山石,巽位(东南)放绿植。
颜色与装饰选择
整体可多用白色、褐色、墨绿色。白色属金,对应西方;褐色、墨绿色属木,对应东方,符合坐西朝东五行。客厅用白色沙发搭配褐色抱枕、墨绿色地毯;卧室床品选褐色或墨绿色,墙面用白色。当然,最好结合房主自身情况调整。
家具摆放原则
高低原则
整体遵循左高右低,如客厅左边放高大家具或书架,右边放矮柜。
房间分配
靠北方房间适合男生住,靠南方房间适合女生住。
避免禁忌
卧室床避免横梁压顶、不对着镜子;客厅沙发选 L 型,主沙发靠实墙,暗含‘靠山’的传统居住理念。
如果您也渴望拥有一个“真正契合自我、蕴含文化能量、独具匠心”的品质空间。
不妨来我的工作室坐坐。
联系方式
公司地址:成都市武侯区置信北街51号
联系电话:+86 181 0806 7347
电子信箱:80989356@qq.com
扫码添加微信
